„Modernizacja sanitariatów, w tym przystosowanie do potrzeb osób niepełnosprawnych” - wznowiony
Data publikacji: 14-11-2023r.
Dyrektor Wojewódzkiego Szpitala Psychiatrycznego w Złotoryi
Z A P R A S Z A
do ponownego złożenia oferty cenowej na zadanie pod nazwą:
„Modernizacja sanitariatów, w tym przystosowanie do potrzeb osób niepełnosprawnych”
Załączone dokumenty:
- Zaproszenie (*pdf)
- zał. nr 1 – Przedmiar robót (*pdf)
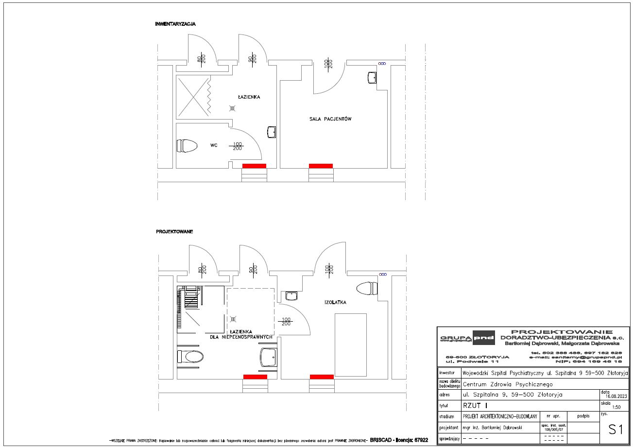
- zał. nr 1.1 – Rzut łazienki (*jpg)
- zał. nr 2 – Wzór umowy (*pdf)
Data publikacji: 20-11-2023r.
Informacja z otwarcia ofert
Załączone dokumenty:
Data publikacji: 22-11-2023r.
Informacja o wyborze najkorzystniejszej oferty cenowej
Załączone dokumenty:
Wytworzył:
Joanna Patron
(2023-11-14)
Udostępnił:
Patron Joanna
(2023-11-14 12:07:16)
Ostatnio zmodyfikował:
Patron Joanna
(2023-11-22 10:10:50)